|
一、Q41F廣式法蘭球閥簡介: Q41F廣式法蘭球閥跟閘閥的類型是一樣的,兩種閥門之間的區別就是廣式球閥的關閉部位是球體,閘閥的關閉部位是閘板,球閥球體圍繞閥體的中心線旋轉90度達到啟閉的閥門。 球閥通常是在管路中作為切斷及改變介質分配流量的流動方向,廣式法蘭球閥在近幾年被廣泛的應用。廣式法蘭球閥按其通道位置可分為直通式,三片式球閥和直角式。后兩種球閥用于分配介質與改變介質的流向。
二、廣式法蘭球閥的優點: 1. 流體阻力小,其阻力系數與同長度的管段相等。 2. 結構簡單、體積小、重量輕。 3. 緊密可靠,目前球閥的密封面材料廣泛使用塑料、密封性好,在真空系統中也已廣泛使用。 4. 操作方便,開閉迅速,從全開到全關只要旋轉90°,便于遠距離的控制。 5. 維修方便,球閥結構簡單,密封圈一般都是活動的,拆卸更換都比較方便。 6. 在全開或全閉時,球體和閥座的密封面與介質隔離,介質通過時,不會引起閥門密封面的侵蝕。 7. 適用范圍廣,通徑從小到幾毫米,大到幾米,從高真空至高壓力都可應用。 三、廣式法蘭球閥安裝注意事項: 1.要留有閥柄旋轉的位置。 2. 不能用作節流。 3帶傳動機構的球閥應直立安裝。 四、廣式法蘭球閥主要零件材料:
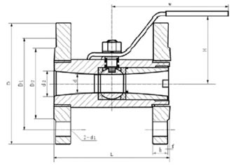
五、廣式法蘭球閥主要尺寸:
|
||||||||||||||||||||||||||||||||||||||||||||||||||||||||||||||||||||||||||||||||||||||||||||||||||||||||||||||||||||||||||||||||||||||||||||||||||||||||||
-
流體阻力小,其阻力系數與同長度的管段相等。
-
操作方便,開閉迅速,從全開到全關只要旋轉90°,便于遠距離的控制。
-
緊密可靠,目前球閥的密封面材料廣泛使用塑料、密封性好,在真空系統中也已廣泛使用。
-
結構簡單、體積小、重量輕。
-
維修方便,球閥結構簡單,密封圈一般都是活動的,拆卸更換都比較方便。
-
根據用戶提供的流量、壓力提供選型規格書及控制方案圖。


