|
單口排氣閥QB1原理作用: QB1單口排氣閥用于管道上的較高點或閉氣地方,來排除管內氣體來疏通管道使管道在工作中正常運轉。QB1單口排氣閥閥體為圓桶狀式閥體,其內部結構主要有不銹鋼浮球。本閥分為螺紋和法蘭式兩種排氣閥。QB1單口排氣閥適用與工作溫度≤80℃的管路上,作為排除管路內氣體的設備。管內開始注水時,浮球會慢慢向上浮起,此時本閥已進行排氣。當達到一定壓力的進修,浮球緊頂住橡膠圈,說明空氣已全部從排氣嘴排出。 QB1單口排氣閥性能特點: QB1單口排氣閥結構簡單,安裝操作方便。 QB1單口排氣閥技術參數:
QB1單口排氣閥部件材質:
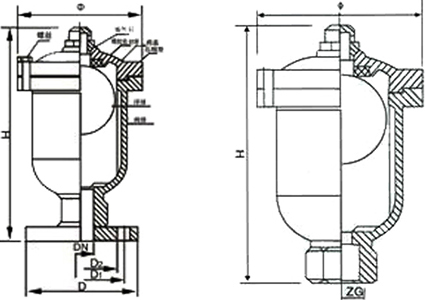
QB1單口排氣閥外形尺寸:
|
-
啟閉方便迅速、省力、流體阻力小,可以經常操作。
-
單口排氣閥結構簡單,安裝操作方便。
-
具有體積小,重量輕,性能可靠,配套簡單,流通能力大。
-
能夠排除管道中的氣體,減少阻力節約能源。
-
浮球托架為不銹鋼,使用壽命長,安全可靠。
-
根據用戶提供的流量、壓力提供選型規格書及控制方案圖。


